€ 410,000
- 7.53
Description
Zum Verkauf steht ein großzügiges Einfamilienhaus mit separater Einliegerwohnung auf einem weitläufigen Grundstück.
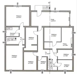
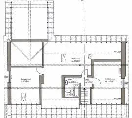
Die Immobilie verfügt über eine Gesamtnutzfläche von ca. 400 m², davon entfallen ca. 246 m² auf die Wohnfläche, verteilt auf zwei Etagen. Zusätzlich ist das Haus vollständig unterkellert und bietet damit umfangreiche Nutz- und Abstellmöglichkeiten.
Das Haus umfasst insgesamt 7 Zimmer, 2 Küchen, 3 Bäder sowie einen Durchgangsraum, wodurch sich flexible Nutzungs- und Gestaltungsmöglichkeiten ergeben – ideal für Familien, Mehrgenerationenwohnen oder zur Kombination von Wohnen und Vermieten.
Der Garten mit ca. 900 m² bietet viel Platz für Erholung, Freizeit und individuelle Gestaltung.
Die Immobilie verfügt über eine Gesamtnutzfläche von ca. 400 m², davon entfallen ca. 246 m² auf die Wohnfläche, verteilt auf zwei Etagen. Zusätzlich ist das Haus vollständig unterkellert und bietet damit umfangreiche Nutz- und Abstellmöglichkeiten.
Das Haus umfasst insgesamt 7 Zimmer, 2 Küchen, 3 Bäder sowie einen Durchgangsraum, wodurch sich flexible Nutzungs- und Gestaltungsmöglichkeiten ergeben – ideal für Familien, Mehrgenerationenwohnen oder zur Kombination von Wohnen und Vermieten.
Der Garten mit ca. 900 m² bietet viel Platz für Erholung, Freizeit und individuelle Gestaltung.
Property for
Sale
Rooms
7.5
Bathrooms
3
Number of Floors
2
Built
1967
Garage
Yes
Garden
No
Cellar
Yes
Balcony
No
Accessible
No
Passenger elevator
No
Heating system
Heating boiler
Internal condition of the building
Completely renovated
Exterior condition of building
Fully renovated
Property type
Single family
Fitted kitchen
No
Guest WC
Yes
Bathtub
No
Shower
No
Flooring
Wooden floorboards
Country
Germany
State/Region
Hesse
City
Giessen
- Posted: 2 months ago
-
- Current rating: 0
- Total votes: 0